

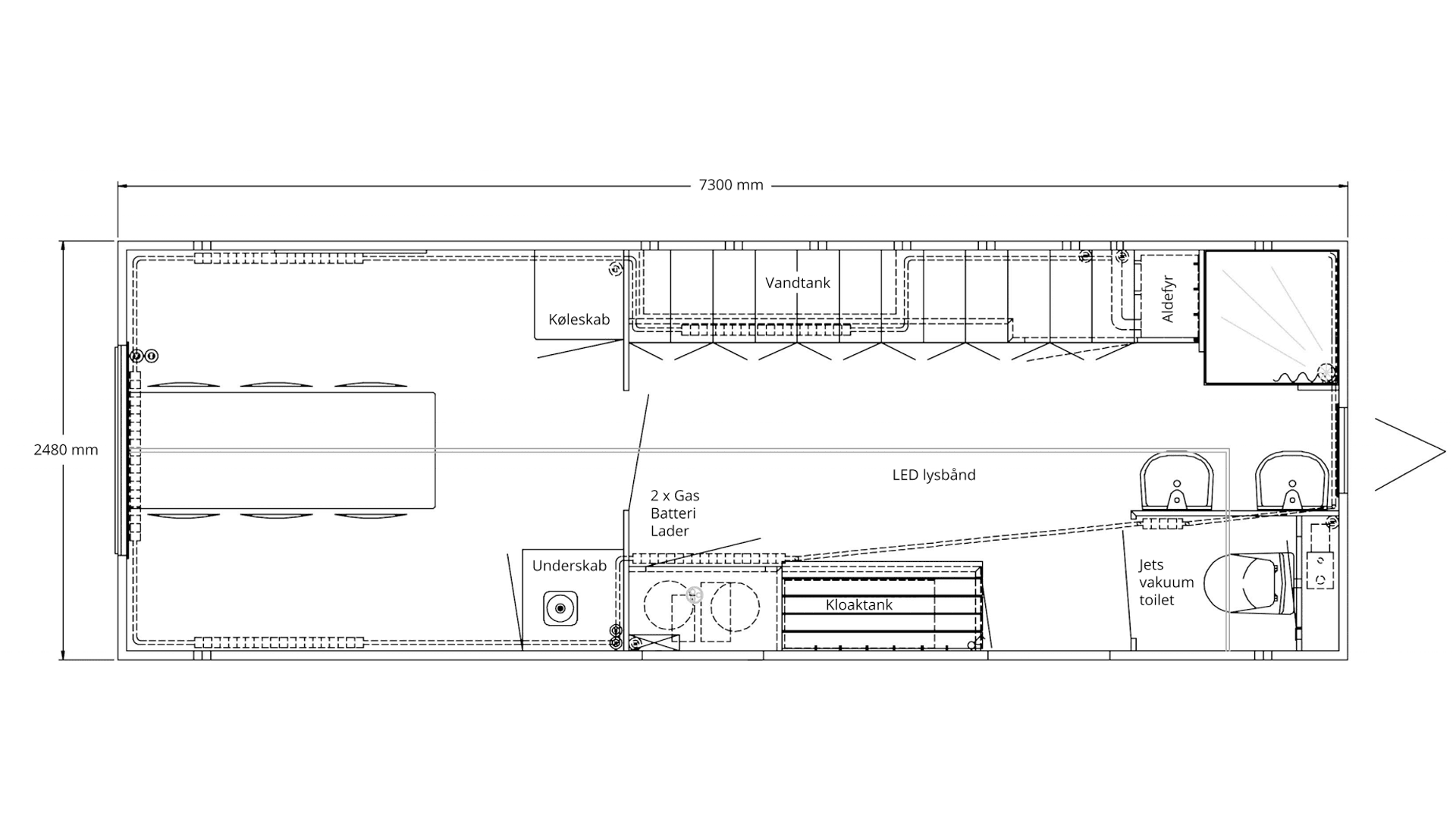
Med denne pionérvogn får du en super praktisk løsning, hvis du har brug for forskellige faciliteter, men ikke umiddelbart har adgang til strøm, vand og kloak. Pionérvognen er nemlig bygget, så den er ”selvforsynende”, og den har både kloaktank, solceller, med mere. Den måler 9,1 m i længden, 3,1 m i højden og 2,5 m i bredden.
Vognen har vakuumtoilet og brusekabine samt to håndvaske. Den er indrettet til 6 personer, så der er 12 skabe til opbevaring af tøj og andet. Der er desuden også et rum til kantine med 6 stole, bord, køleskab og kogeplade. Vognens totalvægt er 2,6 tons.
Pionérvognen her er særligt velegnet, hvis du har brug for en uafhængig mandskabsvogn, der kan stå for fornødne faciliteter til dine medarbejdere på et sted, hvor du ellers ikke kan komme til hverken vand, el, osv.
Passer denne pionérvogn ikke til dine behov, så kan du helt sikkert finde en anden, der gør hos os. Kontakt os gerne, hvis vi skal hjælpe dig med at finde den rigtige løsning til din opgave.
Du kan altid få et totalt overblik over det materiel, du har lejet hos GSV, hvis du bruger vores app. Du kan søge efter lokationer og sagsnumre og markere dine byggesager som favorit, så du altid har en status på materiellet på dine byggesites.Du kan finde informationer om de enkelte maskiner og skal du bruge mere materiel kan du nemt og hurtigt booke via appen. Hvis du er færdig med at bruge materiellet er det lige så hurtigt og nemt at afmelde det igen. 100% overblik på mobilen - det er smart.
Du kan dog ikke booke og afmelde skure, moduler og letvogne i vores app - det kræver at du kontakter os.
Hos GSV har vi afdelinger i hele landet, hvilket gør det nemt for dig at finde en afdeling tæt på dig og dit projekt, og som samtidig sikrer at vi ikke skal så langt, hvis vi skal have udskiftet materiel, som du har lejet. Så spilder vi ikke kostbar tid på dit projekt, da vi hurtigt kan servicere dig.