

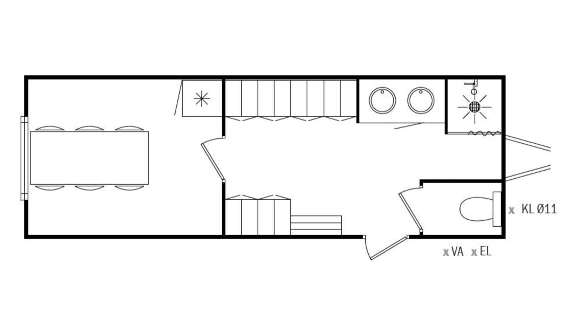
I denne mandskabsvogn er der plads til spisning, omklædning og bad til seks personer. Vognen har indgang i siden. Den er indrettet med et rum til spisning med bord og stole til seks personer, og et rum til bad og omklædning med 12 skabe til omklædning, bad og et lille rum til toilettet. Der er også indrettet et lille køkken med kogeplade, køleskab og kaffemaskine.
Vognen er 2,5 meter bred, 9 meter lang inklusiv træk og 2,95 meter høj og vejer 2 tons. Eltilslutningen er 400 V og vandtilslutningen er 3/4”. Der er desuden også to 30 liters vandvarmere.
Med denne mandskabsvogn får du en vogn, der er nem at transportere, da den har træk, og der er plads til omklædning, bad og spisning til seks personer, så uanset hvor du skal arbejde, kan du nemt have vognen med. Der er også et lille køkken med de mest nødvendige ting, og du kan leje en køkkenpakke fra GSV med gryder og service.
Hvis du har brug for yderligere information om mandskabsvognen eller de andre løsninger, vi tilbyder, er du velkommen til finde os i din lokale GSV-afdeling.
Du kan altid få et totalt overblik over det materiel, du har lejet hos GSV, hvis du bruger vores app. Du kan søge efter lokationer og sagsnumre og markere dine byggesager som favorit, så du altid har en status på materiellet på dine byggesites. Du kan finde informationer om de enkelte maskiner og skal du bruge mere materiel kan du nemt og hurtigt booke via appen. Hvis du er færdig med at bruge materiellet er det lige så hurtigt og nemt at afmelde det igen. 100% overblik på mobilen - det er smart.
Du kan dog ikke booke og afmelde skure, moduler og letvogne i vores app - det kræver at du kontakter os.
Hos GSV har vi afdelinger i hele landet, hvilket gør det nemt for dig at finde en afdeling tæt på dig og dit projekt, og som samtidig sikrer at vi ikke skal så langt, hvis vi skal have udskiftet materiel, som du har lejet. Så spilder vi ikke kostbar tid på dit projekt, da vi hurtigt kan servicere dig.