

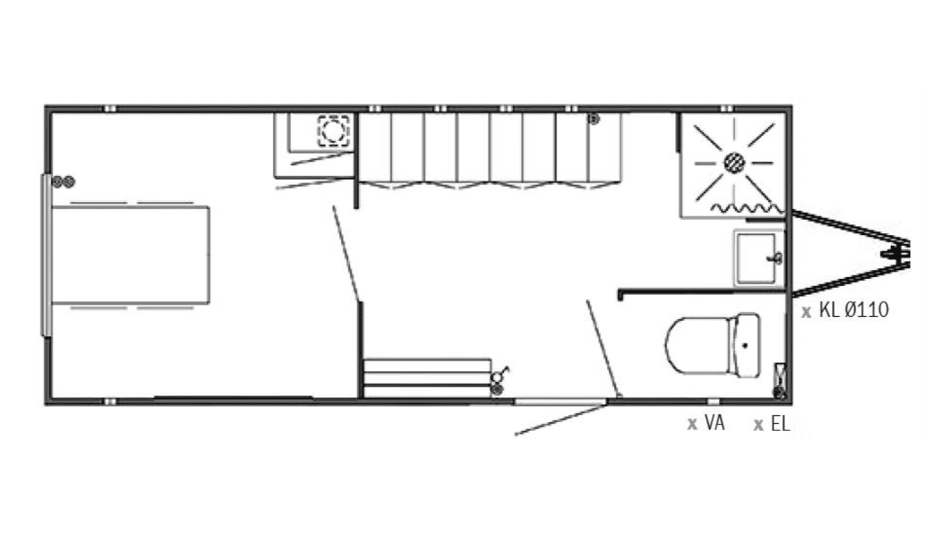
Med denne mandskabsvogn får du en vogn, der er beregnet til op til 4 personer. Vognen har sideindgang i højre side af vognen, der leder ind til et rum med 8 skabe, så der er plads til at klæde om. I samme rum er der bruser og adgang til et lille rum med toilet. I et tilstødende rum er der bord og fire stole.
Mandskabsvognen måler 7,4 m i længden, 2,95 m i højden og 2,3 m i bredden. Totalvægten er 1,5 tons, og vognen er let at koble til et køretøj, så den kan fragtes til det sted, du har brug for den.
Mandskabsvognen til 4 personer passer godt til dig, der har brug for at stille et omklædningsrum, bad og spiseplads til rådighed for dine medarbejdere, for eksempel på en byggeplads.
Skal du bruge en mandskabsvogn med plads til flere personer, eller måske en vogn med en anden indretning? Så har vi et stort udvalg af letvogne, der helt sikkert kan være med til at løse din opgave. Kontakt os gerne, hvis du har spørgsmål.
Du kan altid få et totalt overblik over det materiel, du har lejet hos GSV, hvis du bruger vores app. Du kan søge efter lokationer og sagsnumre og markere dine byggesager som favorit, så du altid har en status på materiellet på dine byggesites. Du kan finde informationer om de enkelte maskiner og skal du bruge mere materiel kan du nemt og hurtigt booke via appen. Hvis du er færdig med at bruge materiellet er det lige så hurtigt og nemt at afmelde det igen. 100% overblik på mobilen - det er smart.
Du kan dog ikke booke og afmelde skure, moduler og letvogne i vores app - det kræver at du kontakter os.
Hos GSV har vi afdelinger i hele landet, hvilket gør det nemt for dig at finde en afdeling tæt på dig og dit projekt, og som samtidig sikrer at vi ikke skal så langt, hvis vi skal have udskiftet materiel, som du har lejet. Så spilder vi ikke kostbar tid på dit projekt, da vi hurtigt kan servicere dig.