

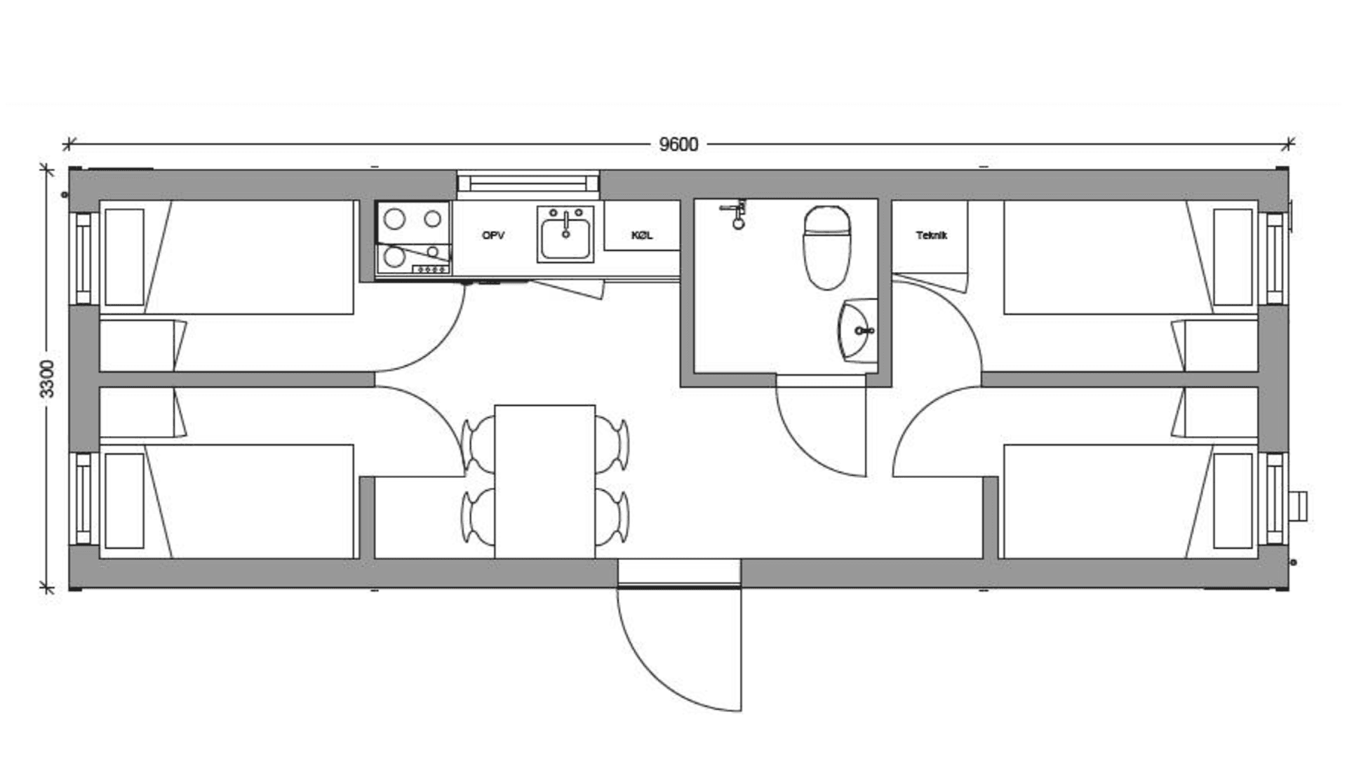
Dette beboelsesmodul er praktisk indrettet med fire værelser, badeværelse og køkken-alrum. Der er altså sovepladser til op til fire mennesker. Det er et maximodul, så der er god plads, da modulet måler 9,6 m i længden, 3,3 meter i bredden og 3,2 m i højden. Modulet vejer 9,2 tons.
Beboelsesmodulets badeværelse har toilet, håndvask og bruser, og køkkenet er udstyret med opvaskemaskine, køleskab, komfur og håndvask. Dertil er der bord med fire siddepladser. Der er vinduer i alle rum undtagen badeværelset. I hvert af værelserne er der seng og et skab til opbevaring af tøj og andet.
Maxi beboelsesmodulet med fire værelser kan for eksempel bruges under større byggeprojekter, hvor medarbejderne er rejst langt og har brug for at kunne overnatte tæt på pladsen. Men modulet kan også bruges til genhusning, for eksempel under udbedring af skader.
Leder du efter en anden midlertidig løsning til beboelse, eller har du brug for andre typer moduler? Vi har alt i skure og moduler, og vi kan også hjælpe dig med en skræddersyet løsning til din opgave.
Du kan altid få et totalt overblik over det materiel, du har lejet hos GSV, hvis du bruger vores app. Du kan søge efter lokationer og sagsnumre og markere dine byggesager som favorit, så du altid har en status på materiellet på dine byggesites. Du kan finde informationer om de enkelte maskiner og skal du bruge mere materiel kan du nemt og hurtigt booke via appen. Hvis du er færdig med at bruge materiellet er det lige så hurtigt og nemt at afmelde det igen. 100% overblik på mobilen - det er smart.
Du kan dog ikke booke og afmelde skure, moduler og letvogne i vores app - det kræver at du kontakter os.
Hos GSV har vi afdelinger i hele landet, hvilket gør det nemt for dig at finde en afdeling tæt på dig og dit projekt, og som samtidig sikrer at vi ikke skal så langt, hvis vi skal have udskiftet materiel, som du har lejet. Så spilder vi ikke kostbar tid på dit projekt, da vi hurtigt kan servicere dig.