
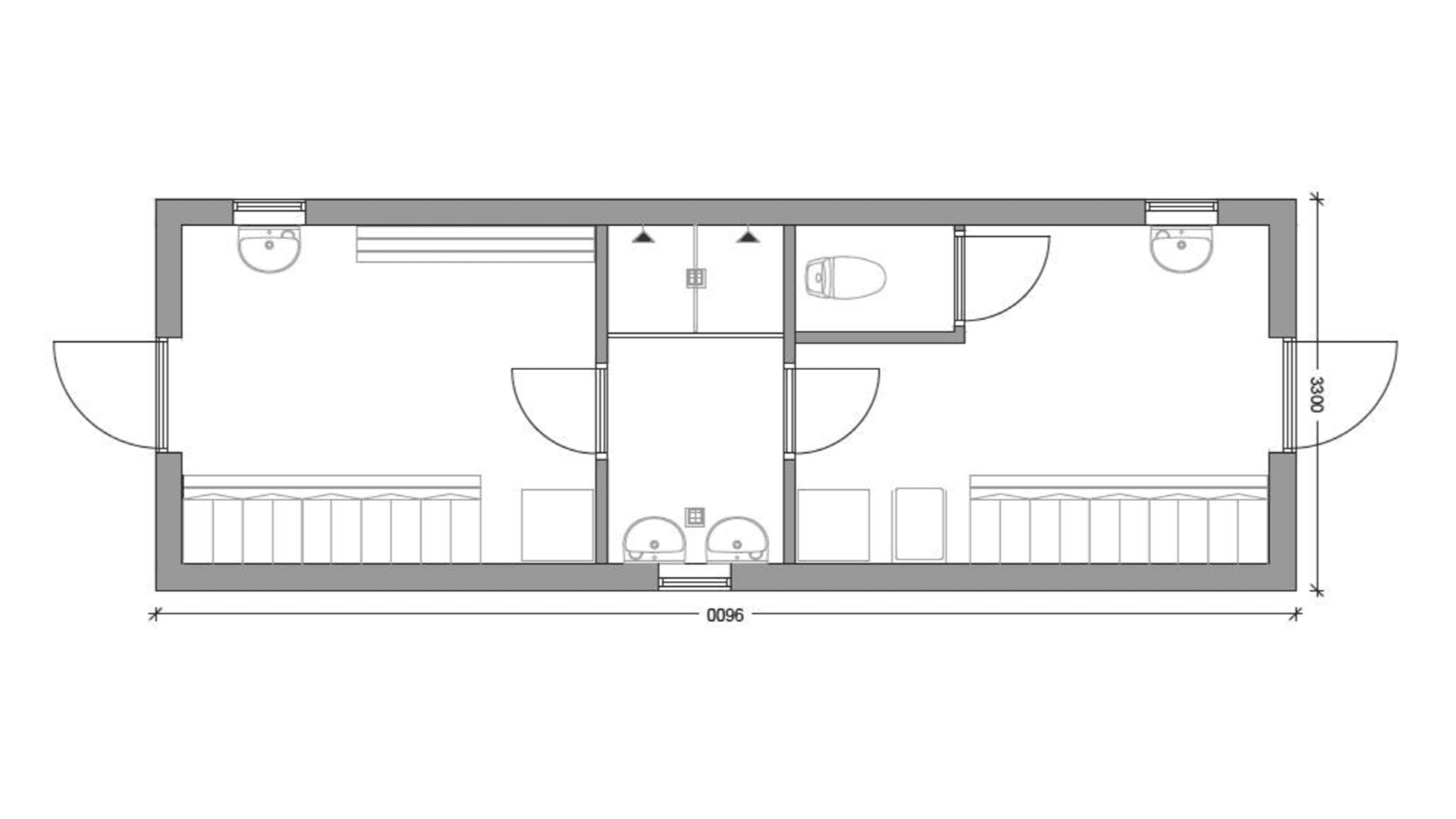
Med dette modul får du et miljømodul beregnet til 10 personer. Modulet er opdelt i to afdelinger adskilt af en lille gang. De to afdelinger har hver 10 skabe og en håndvask. I den lille gang er der to brusekabiner samt to håndvaske. I den ene af afdelingerne er der også et toilet.
Miljøvognen måler 3,3 m i bredden, 9,6 m i længden og 3,2 m i højden. Det vejer 7,5 tons. Får du brug for plads til flere end 10 personer, kan man let sætte flere moduler sammen for at imødegå behovet.
Miljømodulet er velegnet til dig, der har medarbejdere på for eksempel en byggeplads, der arbejder med skadelige og farlige stoffer. Modulet er bygget til at imødekomme strenge hygiejniske krav, og derfor er der både en afdeling til beskidt tøj og et normalt område.
Leder du efter andre løsninger, kan vi tilbyde dig et bredt udvalg af forskellige moduler i mange størrelser og med forskellige indretninger. Er du i tvivl om, hvad den bedste løsning er for dig, kan du altid kontakte os.
Du kan altid få et totalt overblik over det materiel, du har lejet hos GSV, hvis du bruger vores app. Du kan søge efter lokationer og sagsnumre og markere dine byggesager som favorit, så du altid har en status på materiellet på dine byggesites. Du kan finde informationer om de enkelte maskiner og skal du bruge mere materiel kan du nemt og hurtigt booke via appen. Hvis du er færdig med at bruge materiellet er det lige så hurtigt og nemt at afmelde det igen. 100% overblik på mobilen - det er smart.
Du kan dog ikke booke og afmelde skure, moduler og letvogne i vores app - det kræver at du kontakter os.
Hos GSV har vi afdelinger i hele landet, hvilket gør det nemt for dig at finde en afdeling tæt på dig og dit projekt, og som samtidig sikrer at vi ikke skal så langt, hvis vi skal have udskiftet materiel, som du har lejet. Så spilder vi ikke kostbar tid på dit projekt, da vi hurtigt kan servicere dig.