
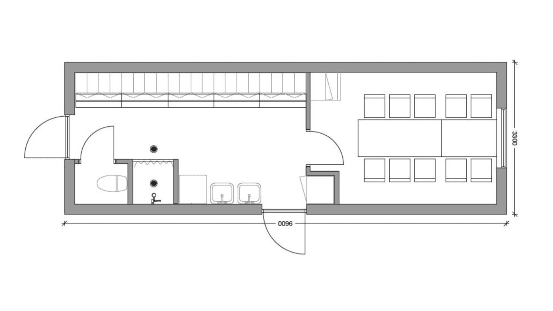
Med dette mandskabsmodul får du et fleksibelt modul, da du selv kan bestemme om indgangen skal sidde i gavlen eller i enten højre eller venstre side. Modulet har plads til 10 mennesker, der skal klæde om og bade. Det er indrettet med 20 skabe til omklædning, toilet, bad og to håndvaske samt et rum med borde og stole til 10 mennesker. Der er også tørreskab.
Vognen har en 400 V elstilslutning, et 100 mm afløb og en 3/4” vandtilslutning. Vognen måler 3,3 meter i bredden, 9,6 meter i længden og 3,2 meter i højden. Det er isoleret med dobbelt mængde isolering i henhold til Skurvogn-regulativet.
Dette mandskabsmodul er til dig, der har brug for et omklædnings- og baderum til 10 personer samt spisebord og stole. Vognen er fleksibel, da du selv kan bestemme indgangens placering.
Har du brug for et andet mandskabsmodul? Hos os finder du mange forskellige modeller af mandskabsmoduler, så der er helt sikkert et, der passer til dine behov. Du er også altid velkommen til at kontakte din lokale GSV-afdeling, hvis du har brug for yderligere informationer.
Du kan altid få et totalt overblik over det materiel, du har lejet hos GSV, hvis du bruger vores app. Du kan søge efter lokationer og sagsnumre og markere dine byggesager som favorit, så du altid har en status på materiellet på dine byggesites. Du kan finde informationer om de enkelte maskiner og skal du bruge mere materiel kan du nemt og hurtigt booke via appen. Hvis du er færdig med at bruge materiellet er det lige så hurtigt og nemt at afmelde det igen. 100% overblik på mobilen - det er smart.
Du kan dog ikke booke og afmelde skure, moduler og letvogne i vores app - det kræver at du kontakter os.
Hos GSV har vi afdelinger i hele landet, hvilket gør det nemt for dig at finde en afdeling tæt på dig og dit projekt, og som samtidig sikrer at vi ikke skal så langt, hvis vi skal have udskiftet materiel, som du har lejet. Så spilder vi ikke kostbar tid på dit projekt, da vi hurtigt kan servicere dig.