
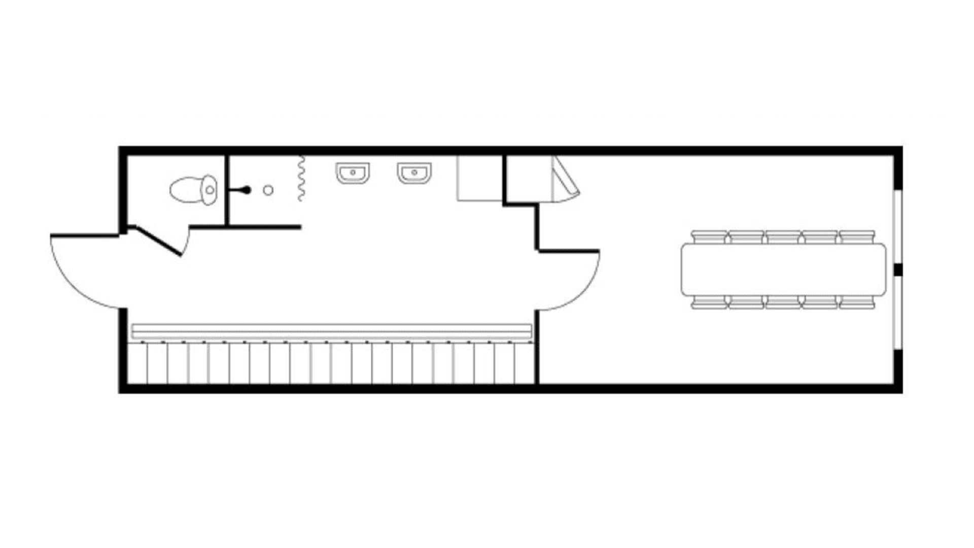
Dette mandskabsmodul har plads til bad og omklædning for op til 10 personer. Modulet har indgang i gavlen og måler 3 meter i bredden, 9,6 meter i længden og 2,97 meter i højden. Indeni vognen er der to rum. Et rum er indrettet med 20 skabe, toilet og bad. I det andet rum er der fin spiseplads til alle 10 personer. I dette rum er der også køleskab.
Vognen har 400 V eltilslutning, 3/4" vandtilslutning og 110 mm afløb.
Mandskabsmodulet er til dig, der skal bruge omklædning og bad lige ved hånden, når du er på byggepladsen. Modulet er også velegnet til spisepauser, da der er mulighed for at alle 10 personer kan sidde og spise samtidig. Alle møbler, du måtte have brug for, kan lejes hos os. vi har også pakker med service og rengøringsmaterialer for ekstra belejlighed.
Hvis dine behov for et mandskabsmodul ikke passer med denne indretning, kan du hos os finde et stort udvalg af andre mandskabsvogne. Har du brug for flere oplysninger, er du velkommen til at kontakte os.
Du kan altid få et totalt overblik over det materiel, du har lejet hos GSV, hvis du bruger vores app. Du kan søge efter lokationer og sagsnumre og markere dine byggesager som favorit, så du altid har en status på materiellet på dine byggesites. Du kan finde informationer om de enkelte maskiner og skal du bruge mere materiel kan du nemt og hurtigt booke via appen. Hvis du er færdig med at bruge materiellet er det lige så hurtigt og nemt at afmelde det igen. 100% overblik på mobilen - det er smart.
Du kan dog ikke booke og afmelde skure, moduler og letvogne i vores app - det kræver at du kontakter os.
Vi har afdelinger i hele landet, hvilket gør det nemt for dig at finde en afdeling tæt på dig og dit projekt, og som samtidig sikrer at vi ikke skal så langt, hvis vi skal have udskiftet materiel, som du har lejet. Så spilder vi ikke kostbar tid på dit projekt, da vi hurtigt kan servicere dig.