



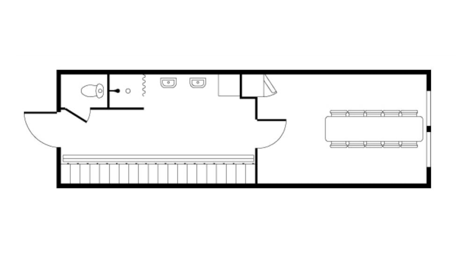
Med denne mandskabsvogn får du bad og omklædning til 10 personer lige ved hånden. Modulet måler 3 meter i bredden og 9,6 meter i længden. Det er indrettet med 20 skabe og et bad og toilet. Der er tørreskab i omklædningsrummet. Dertil er der et separat rum med plads til at indrette spiseplads til alle 10 personer. I dette rum er der også køleskab.
Mandskabsvognen er til dig, der har brug for et omklædningsrum til 10 personer lige i nærheden, når du eksempelvis er i arbejde på en byggeplads. Dette modul kan også indrettes med spiseplads , eller hvad du ellers har brug for. Alle møbler til indretning kan lejes gennem os. Vi har borde, stole, reoler og meget andet, så modulet kan blive præcis som du ønsker det.
Hos os finder du et bredt udvalg af mandskabsvogne, kontorvogne, formandsmoduler samt mange andre muligheder og løsninger inden for skurvogne. Vi er altid klar til at hjælpe dig med at finde den bedste løsning til dig, så tøv endelig ikke med at kontakte os.
Du kan altid få et totalt overblik over det materiel, du har lejet hos GSV, hvis du bruger vores app. Du kan søge efter lokationer og sagsnumre og markere dine byggesager som favorit, så du altid har en status på materiellet på dine byggesites. Du kan finde informationer om de enkelte maskiner og skal du bruge mere materiel kan du nemt og hurtigt booke via appen. Hvis du er færdig med at bruge materiellet er det lige så hurtigt og nemt at afmelde det igen. 100% overblik på mobilen - det er smart.
Du kan dog ikke booke og afmelde skure, moduler og letvogne i vores app - det kræver at du kontakter os.
Vi har afdelinger i hele landet, hvilket gør det nemt for dig at finde en afdeling tæt på dig og dit projekt, og som samtidig sikrer at vi ikke skal så langt, hvis vi skal have udskiftet materiel, som du har lejet. Så spilder vi ikke kostbar tid på dit projekt, da vi hurtigt kan servicere dig.