
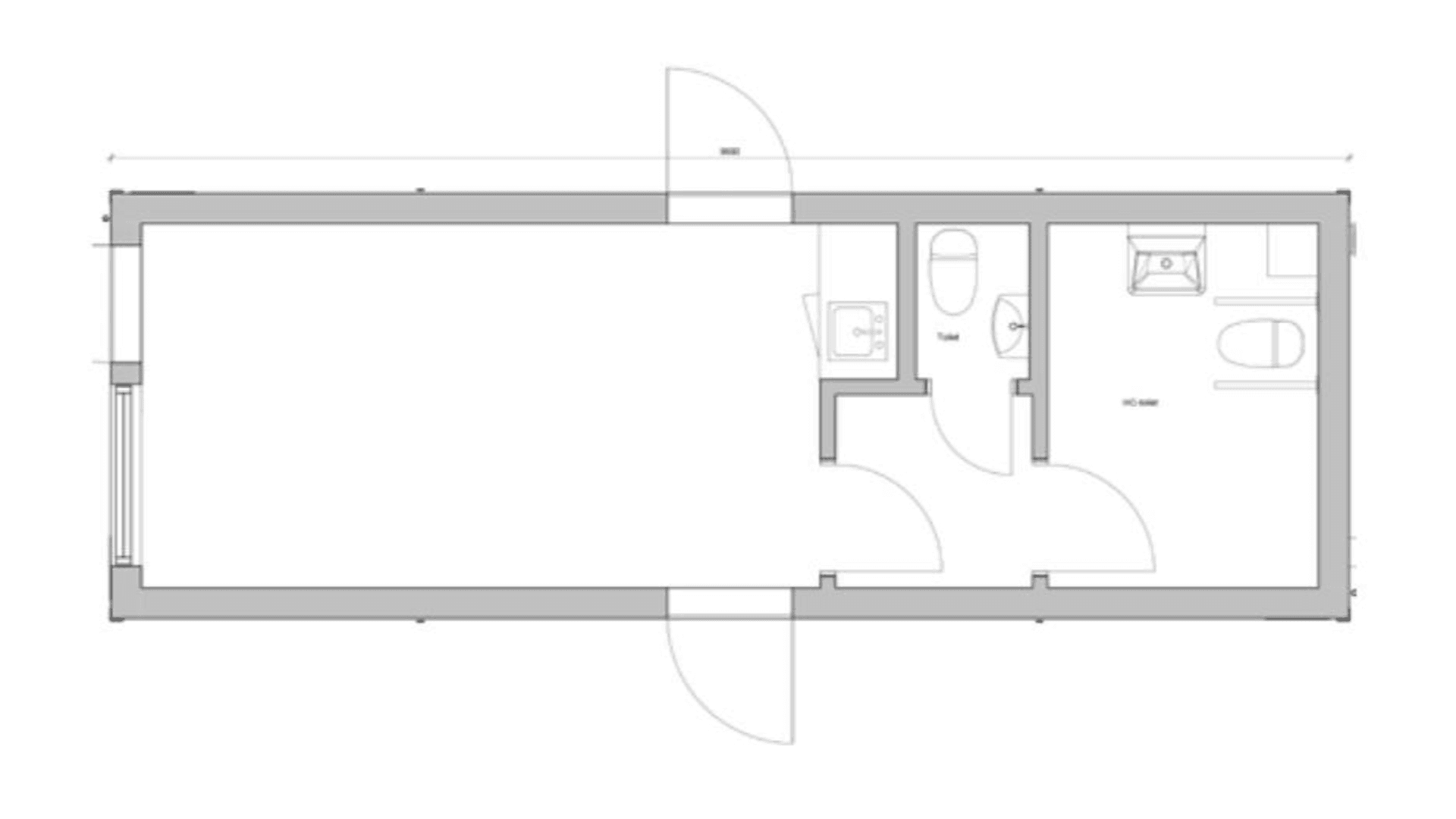
Dette entrémodul er indrettet med et almindeligt toilet og et handicaptoilet. Indgangene til modulet sidder i den ene gavl og i hver side, og uanset hvilken indgang, du bruger, træder du ind i et stort rum med en håndvask og et lille køkkenbord. Derfra kan du træde ind i en lille gang, hvor du finder begge toiletter.
Modulet er et maximodul, og det betyder, at du både får ekstra længde og højde sammenlignet med et almindeligt modul. Modulet måler 9,6 m i længden, 3,2 m i højden og 3,3 m i bredden. Det vejer 8,3 tons.
Maxi entrémodulet med handicaptoilet og almindeligt toilet har mange anvendelsesmuligheder, men det er oplagt at bruge det som indgangsparti for eksempel til omklædningsfaciliteter, midlertidige kontorer eller meget andet.
Uanset hvilken løsning du leder efter til kontor, omklædning, sanitet med mere, kan du finde alt i skure, moduler og containere hos os. Vi har både stationære og mobile løsninger, og har du spørgsmål eller særlige ønsker, er du velkommen til at kontakte os, og så hjælper vi dig med at finde en løsning.
Du kan altid få et totalt overblik over det materiel, du har lejet hos GSV, hvis du bruger vores app. Du kan søge efter lokationer og sagsnumre og markere dine byggesager som favorit, så du altid har en status på materiellet på dine byggesites. Du kan finde informationer om de enkelte maskiner og skal du bruge mere materiel kan du nemt og hurtigt booke via appen. Hvis du er færdig med at bruge materiellet er det lige så hurtigt og nemt at afmelde det igen. 100% overblik på mobilen - det er smart.
Du kan dog ikke booke og afmelde skure, moduler og letvogne i vores app - det kræver at du kontakter os.
Hos GSV har vi afdelinger i hele landet, hvilket gør det nemt for dig at finde en afdeling tæt på dig og dit projekt, og som samtidig sikrer at vi ikke skal så langt, hvis vi skal have udskiftet materiel, som du har lejet. Så spilder vi ikke kostbar tid på dit projekt, da vi hurtigt kan servicere dig.