

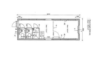
Med dette modul får du et entrémodul, der har to rum og indgang i den ene gavl. Modulet er udstyret med to toiletter og en bruser i det rum, hvor indgangen også er. Derudover er der trinette i det andet rum, så der er mulighed for at lave mad. Der er to vinduer i rummet med toiletter og bad, og et vindue i det andet rum.
Modulet måler 2,9 m i bredden og 8,4 m i længden. Det er et ECOline modul, hvilket betyder, at det har 55% lavere elforbrug, 3-lags termoruder, ventilation med genvinding samt flere miljøvenlige løsninger.
ECOline entremodulet er ideelt til dig, der skal bruge et modul, der både indeholder toilet, bad og mulighed for at lave mad. Modulet kan kobles sammen med andre moduler, for eksempel hvis du har moduler med kontor, storrumsmoduler eller andet.
Har du brug for at sætte entrémodulet sammen med andre moduler, eller leder du efter et entremodul med andre specifikationer? Hos os finder du begge dele og mere til. Kontakt os gerne, hvis vi skal hjælpe dig med at finde det rigtige modul til din opgave.
Du kan altid få et totalt overblik over det materiel, du har lejet hos GSV, hvis du bruger vores app. Du kan søge efter lokationer og sagsnumre og markere dine byggesager som favorit, så du altid har en status på materiellet på dine byggesites. Du kan finde informationer om de enkelte maskiner og skal du bruge mere materiel kan du nemt og hurtigt booke via appen. Hvis du er færdig med at bruge materiellet er det lige så hurtigt og nemt at afmelde det igen. 100% overblik på mobilen - det er smart.
Du kan dog ikke booke og afmelde skure, moduler og letvogne i vores app - det kræver at du kontakter os.
Hos GSV har vi afdelinger i hele landet, hvilket gør det nemt for dig at finde en afdeling tæt på dig og dit projekt, og som samtidig sikrer at vi ikke skal så langt, hvis vi skal have udskiftet materiel, som du har lejet. Så spilder vi ikke kostbar tid på dit projekt, da vi hurtigt kan servicere dig.